NOUVEAUTE - A Vendre €330,000 - Appartement
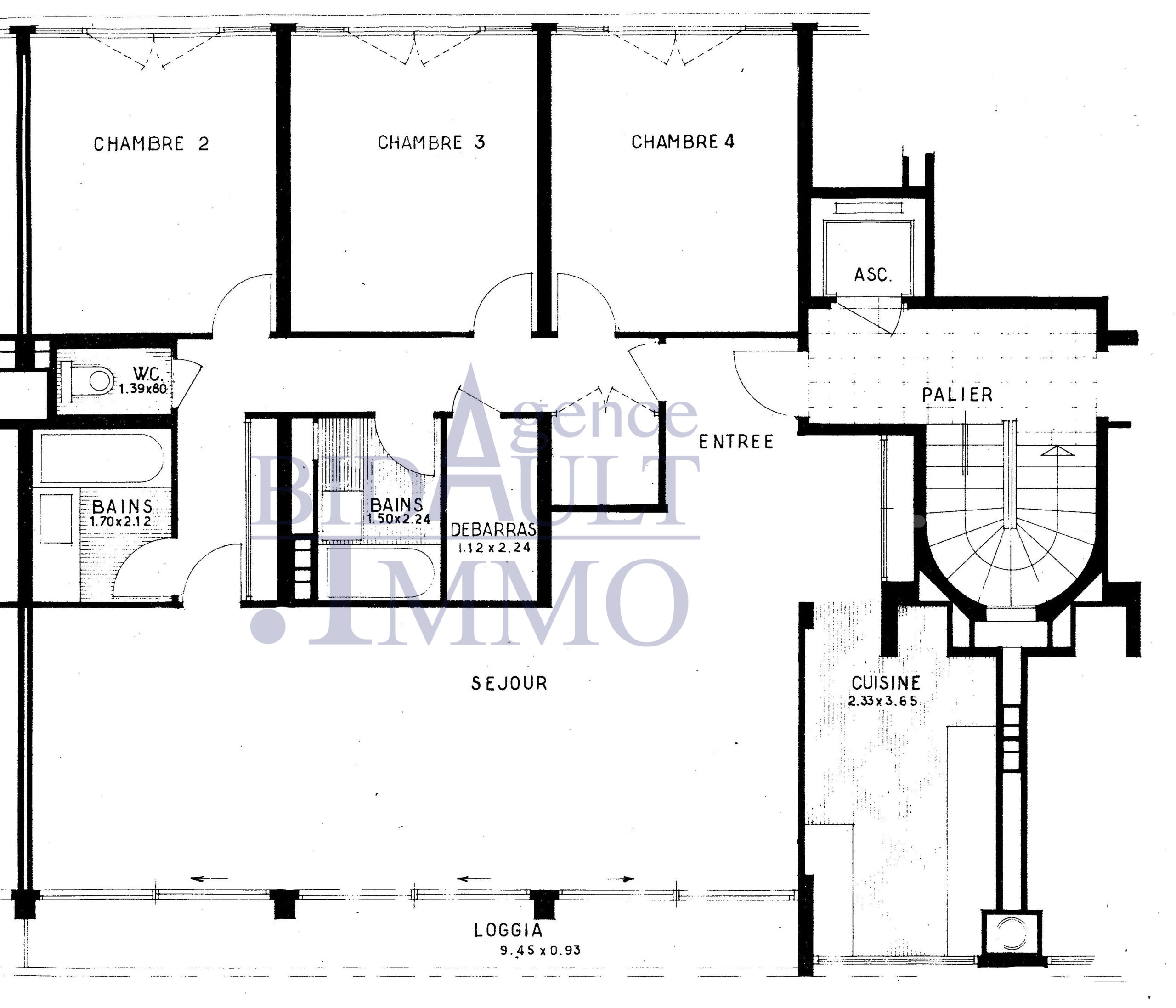
L’Agence Bidault Immobilier vous présente un appartement 5/6 pièces traversant situé au coeur de la Résidence Élysée II à La Celle-Saint-Cloud. Cet appartement situé troisième étage (3/6 avec ascenseur) de 103,59m2 lumineux avec son Séjour / Salle à Manger orienté SUD-EST comprend : une entrée (3,37m2), un beau triple séjour (35,68m2) donnant sur un balcon en enfilade (SE), possibilité de re-créer facilement la quatrième chambre (suite parentale avec accès balcon), une cuisine séparée (possibilité d’ouverture intégrale vers le séjour), 3 chambres (10,80m2, 10,80m2, 10,80m2), une salle de bain, une salle d’eau (avec wc), dressing, grand espace de rangements, 1wc séparé. Huisseries en bois simple vitrage dans l’appartement. Travaux de rénovation à prévoir. Une CAVE vient compléter ce bien. Un GARAGE BOX fermé en supplément. Facilités d’accès A86. Arrêt de bus devant la résidence. Écoles, commerces, bus (direct ligne L ou RER A) à 2 minutes. Copropriété de 4119 lots (dont 1481 lots à usage d’habitation). Pas de procédures en cours. Classe énergie E indice 230 – Classe climat E indice 50. Taxe Foncière : 1983€. Les charges annuelles sont de 7535€. Les charges comprennent l’eau froide, l’eau chaude, le gaz, le chauffage, l’entretien de l’immeuble (Fonds Travaux Loi Alur et Gros Travaux), les espaces verts, le gardien 24/24, l’usage de la piscine, la sécurité. Les informations sur les risques auxquels ce bien est exposé, y compris l’obligation légale de débroussaillement, sont disponibles sur le site Géorisques : http://www.georisques.gouv.fr. Pour plus d’informations et organiser une visite, contactez-nous au 0670069823. Vos Projets ont une Adresse…
Agence Bidault Immobilier – 40 Résidence Elysée II – 78170 La Celle-Saint-Cloud
Appartement 5/6 Pièces La Celle-Saint-Cloud – Référence Annonce: 4070
Prix : 330.000€ (Honoraires à la charge de l’acquéreur)
Prix du bien hors honoraires : 314.286€
Taux d’honoraires : 5%
Bilans Energétiques
Date de réalisation des Diagnostics : 23.12.2025


Caractéristiques du bien
- Référence Annonce: 4070
- Ville: La Celle-Saint-Cloud
- Code Postal: 78170
- Secteur: La Jonchère - Sablons
- Résidence: Elysée 2
- Année de construction: 1965
- Nombre de pièces: 5/6 Pièces
- Superficie totale: 103,59m2
- Etage: 3/6
- Ascenseur: Oui
- Nombre de chambres: 3 - Possibilité de recréer facilement la 4ème chambre
- Superficie des chambres: 10,8m2 - 10,8m2 - 10,8m2
- Superficie séjour salle à manger: 35,68m2
- Date de réalisation des Diagnostics: 18.12.2025
- Bien soumis à un diagnostic ERP: Oui
- Bien en copropriété: Oui
- Nombre de Lots: 4119 lots
- Type Chauffage: Collectif - Gaz - Sol & Plafond
- Charges Annuelles: 7535€
- Interphone: Oui
- Etat Général: Travaux à prévoir
- Gardien: Oui - 24h/24h
- Tennis: Oui - Municipaux
- Piscine: Oui
- Cave: Oui - 1
- Garage Box: Oui - En supplément
- Procédures en cours: Non


























