NOUVEAUTE - A Vendre €380,000 - Appartement
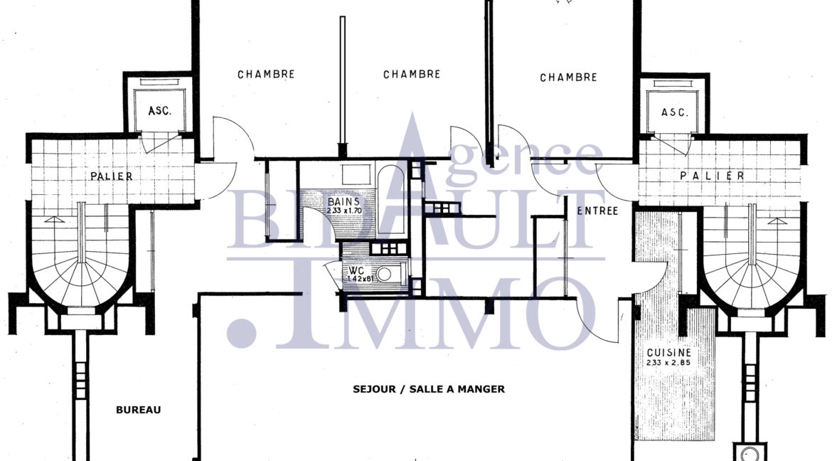
L’Agence Bidault Immobilier vous présente un double appartement 6 pièces de 109,45m2 situé au sein de la Résidence Élysée II à La Celle-Saint-Cloud. Situé au deuxième étage (2/6 avec ascenseur), cet appartement familial comprend : un beau séjour / salle à manger de 31,74m2 donnant sur son balcon (Exposition SO), une cuisine séparée (possibilité d’ouverte intégrale vers le séjour), 4 chambres (dont 2 chambres avec balcon), deux salles de bain, deux wc (dont un séparé), nombreux rangements. Les huisseries ont été intégralement changées en double vitrage. Volets électriques. Nombreuses possibilités en terme d’agencement. Travaux à prévoir. Deux CAVES viennent compléter ce bien. GARAGE BOX fermé en supplément à proximité immédiate. Possibilité de rediviser les deux appartements en 2 appartements 2/3 pièces (portes d’entrée séparées). Facilités d’accès A86. Arrêt de bus devant la résidence. Écoles, commerces, bus 27 (direct ligne L ou RER A) à 2 minutes. Copropriété de 4119 lots. Pas de procédures en cours. Classe énergie D indice 141 – Classe climat D indice 30. Les charges annuelles sont de 7500€. Les charges comprennent l’eau froide, l’eau chaude, le gaz, le chauffage, l’entretien de l’immeuble (Fonds Travaux Loi Alur et Gros Travaux), les espaces verts, le gardien 24/24, l’usage de la piscine, la sécurité. Les informations sur les risques auxquels ce bien est exposé, y compris l’obligation légale de débroussaillement, sont disponibles sur le site Géorisques : http://www.georisques.gouv.fr. Pour plus d’informations et organiser une visite, contactez-nous ! Vos Projets ont une Adresse…
Agence Bidault Immobilier – 40 Résidence Elysée II – 78170 La Celle-Saint-Cloud- Tél. : 06 70 06 98 23.
Appartement 6 Pièces La Celle-Saint-Cloud – Référence Annonce: 4060
Prix : 380.000€ (Honoraires à la charge du vendeur)
Bilans Energétiques
Date de réalisation : 18.10.2023


Caractéristiques du bien
- Référence Annonce: 4060
- Ville: La Celle-Saint-Cloud
- Code Postal: 78170
- Secteur: La Jonchère - Sablons
- Résidence: Elysée 2
- Année de construction: 1965
- Etage: 2/6
- Ascenseur: Oui
- Nombre de pièces: 6 pièces
- Superficie totale: 109,45m2
- Nombre de chambre: 4
- Cuisine: Séparée - Possibilité d'ouverture
- Nombre de salle de bain: 1
- Nombre de salle d'eau: 1
- Nombre de wc: 2 (dont 1 séparé)
- Bien en copropriété: Oui
- Nombre de lots: 4119 lots
- Date de réalisation des Diagnostics: 18.10.2023
- Classe Energie: Classe D - Indice 141
- Classe Climat: Classe D - Indice 30
- Bien soumis à un Diagnostic ERP: Oui
- Charges Annuelles: 7500€
- Type Chauffage: Collectif - Gaz - Sol & Plafond
- Interphone: Oui - Nouveau système de visio
- Procédures en cours: Non
- Cave: Oui - 2
- Gardien: Oui - 24h / 24h
- Piscine: Oui
- Tennis: Oui - Municipaux
- Etat général: Travaux à prévoir
- Procédures en cours: Non




























